Logo

  • News
  • Projekte
    • Büro
    • Bildung
    • Wohnen
    • Hotel & Gastro
    • Sonderbauten
    • Wettbewerbe
  • Büro
  • Team
  • Jobs
  • Kontakt
GS Architetur Logo
  • News
  • Projekte
    • Büro
    • Bildung
    • Wohnen
    • Hotel & Gastro
    • Sonderbauten
    • Wettbewerbe
  • Büro
  • Team
  • Jobs
  • Kontakt
// Erweiterung Heidelberg College // Heidelberg

Standort Neuenheimer Landstraße 24, Heidelberg

Bauherr Heidelberg College / Familie Holzberg

Größe 1.845,75 m² BGF, 1.292,00 m² NF

Baukosten 6,4 Mio € KG 300 + 400 (Kostenschätzung)

mehr

Sonstiges QNG Plus Zertifizierung möglich

Team Johannes Busch (Entwurf), Lena Bickert, Tim Hoss, Benjamin Ulrich, GDLA – Gornik Denkel Landschaftsarchitektur bdla

Abbildungen grabowski.spork architektur

Auf dem Grundstück des HDC in Heidelberg ist ein weiteres Schulhaus für das Heidelberg College vorgesehen. Der Neubau soll eine Kutscherhaus ersetzen und durch seine maßvolle Kubatur und ein steiles Satteldach sensibel zwischen den denkmalgeschützten Nachbarbauten vermitteln. Unser Beitrag zeigt unseren Anspruch: klare Architektur, sensibel im Kontext und zukunftsorientiert geplant.

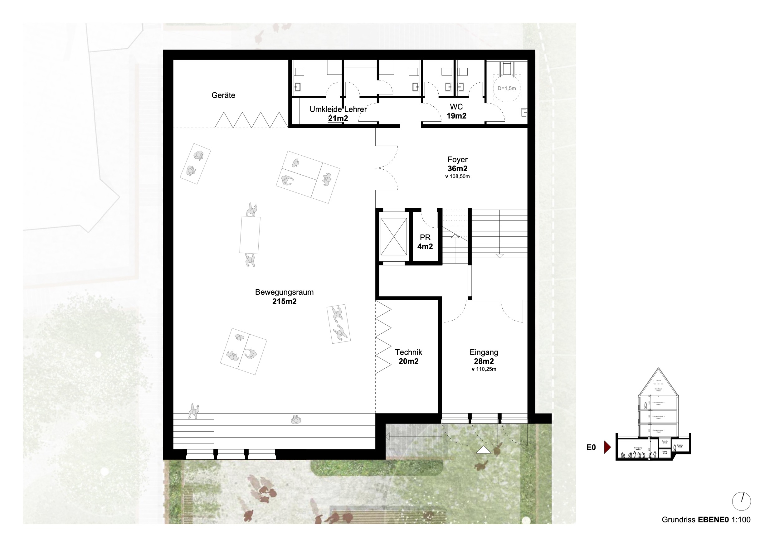
Unser Entwurf sieht ein solitäres Volumen vor, welches das Ensemble aus Villa Rothebühl und Vorderhaus selbstbewusst ergänzt. Das Raumprogramm wurde teilweise tief in den Hang integriert, wodurch oberirdisch ein klar gegliederter, schmaler Baukörper mit starker Bezugnahme zur historischen Umgebung entstand. Im Hofgeschoss, über das auch die Anbindung an den kleinen Schulhof erfolgt, liegt der in den Hang geschobene Bewegungsraum mit Foyer und Nebenräumen. Darüber liegen auf drei Etagen insgesamt sechs Klassenräume mit Begegnungsflächen und terrassierten Außenflächen. Im Dachgeschoss unter dem Spitzdach mit Gauben sind die Kunsträume vorgesehen.

Besonderes Augenmerk lag auch auf der nachhaltigen Konstruktion: ein traditionelles Sparrendach mit Biberschwanzziegeln, langlebige Ziegelmauerwerksfassaden mit mineralischem Putz, sowie Holz-Alu-Fenster und nicht zuletzt der Rohbau in CO₂-reduziertem Beton. Ein abgestuftes Freiraumkonzept mit Terrassen, Pergolen und Blickbezügen zum Neckar stärkt die Verzahnung von Gebäude und Hang. Energieeffizienz, ressourcenschonende Bauweise und ein zukunftsfähiges Energiekonzept mit Wärmepumpe, Bauteilaktivierung und einer mechanischen Lüftung mit Wärmerückgewinnung waren der Plan. Leider nicht gewonnen!

weniger

Weitere Projekte

InnoHub

Marburg

Konrad Duden Schule

Wiesbaden

AZB Moltkering

Wiesbaden

KIGA Moltkering

Wiesbaden

Kita U3 Ginnheim

Frankfurt am Main

Kita St. Gabriel

Wiesbaden

Erweiterung der Friedrich-Ludwig-Jahn Schule

Wiesbaden

Kita St. Georg

Wiesbaden

Kita Pfiffikus

Wettenberg - Wißmar

Building to Educate

Braun Publishing 2018

Ausgezeichnter Stahlbau 2018

Callwey Verlag

  • grabowski.spork architektur
  • Impressum
  • Datenschutz